PQW — Мобільний перевантажувальний міст
Мобільний перевантажувальний міст PQW належить до широкої гами продуктів фірми PROMStahl. Це ідеальна система обслуговування транспортних засобів (при перевантаженні), висота вантажного простору яких рівна або вище поверхні складу.
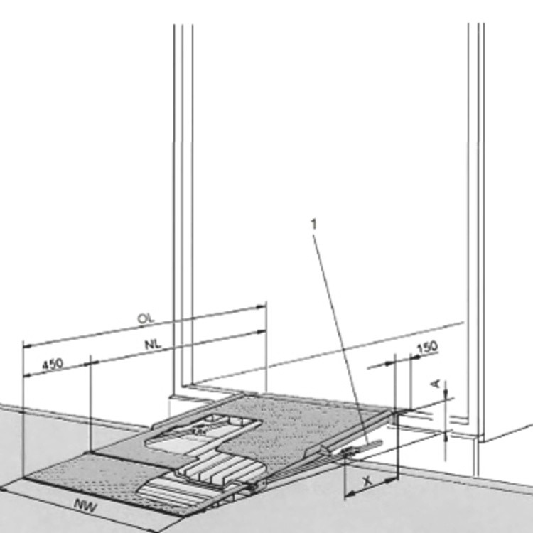
Плита PQW володіє стабільною звареною конструкцією, а два рухомих закріпних плеча охороняють платформу від пересування. Максимальна (навантаження номінальне згідно PN 1398) вантажопідйомність виносить 20 kN. Доступна в кольорі RAL 5010.
Платформа PROMStahl-u виконує новітню Європейську норму EN 1398.
| Позначення | Назва | Параметр |
|---|---|---|
| Номінальна вантажопідйомність | 20 kN (2 т) | |
| NL | Номінальна довжина | 1450, 1950, 2450, 2950, 3450 мм |
| NW | Номінальна ширина | 1250 мм |
| OL | Загальна довжина | 1900, 2400, 2900, 3400, 3900 мм |
| А | Нівельована висота | 275, 365, 450, 540, 625 мм |
| Х | Максимальна відстань між рампою і вантажівкою | 650, 900, 1150, 1400, 1650 мм |
| Кольори RAL | 5010 | |
| 1 | Рухоме закріпне плече |
Файли для скачування

